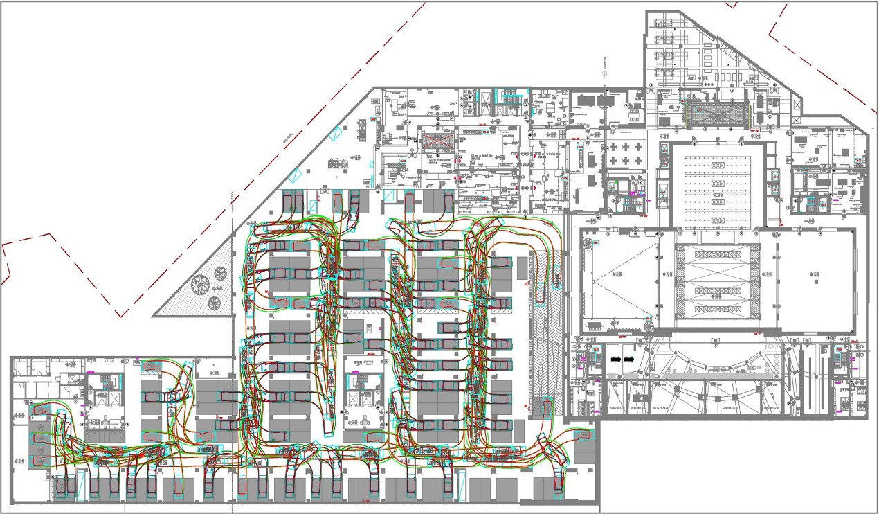
Proje İstanbul Taksim ilçesinde yer almaktadır. Eski Atatürk Kültür Merkezi yıkılıp yerine daha kapsamlı yeni bir Atatürk Kültür Merkezi yapısı tasarlanmıştır. 1 adet opera, konferans salonu, tiyatro, sinema, kütüphane, sergi alanı ve cafelerden oluşmaktadır. Taksimin merkezinde bulunan yapının çevre yollar ile ilişkisi kurularak trafik çözümleri tasarlanmıştır.
© 2024 hartekmuhendislik.com.tr - Tüm Hakları Saklıdır